Skip To Content

11712 S Lake Street

Empire, MI 49630
  • $870,000
  • STATUS: Active
  • ON SITE: 938 Days
  • MLS #: 1914472
UPDATED: 30 min ago
$870,000
  • 0
    BEDS
  • 1.12
    ACRES
  • 0
    BATHS
  • 0
    1/2 BATHS
Neighborhood:
N/A
Type:
Vacant Land / Lots
County:
Area:

School Ratings & Info

School District:

Description

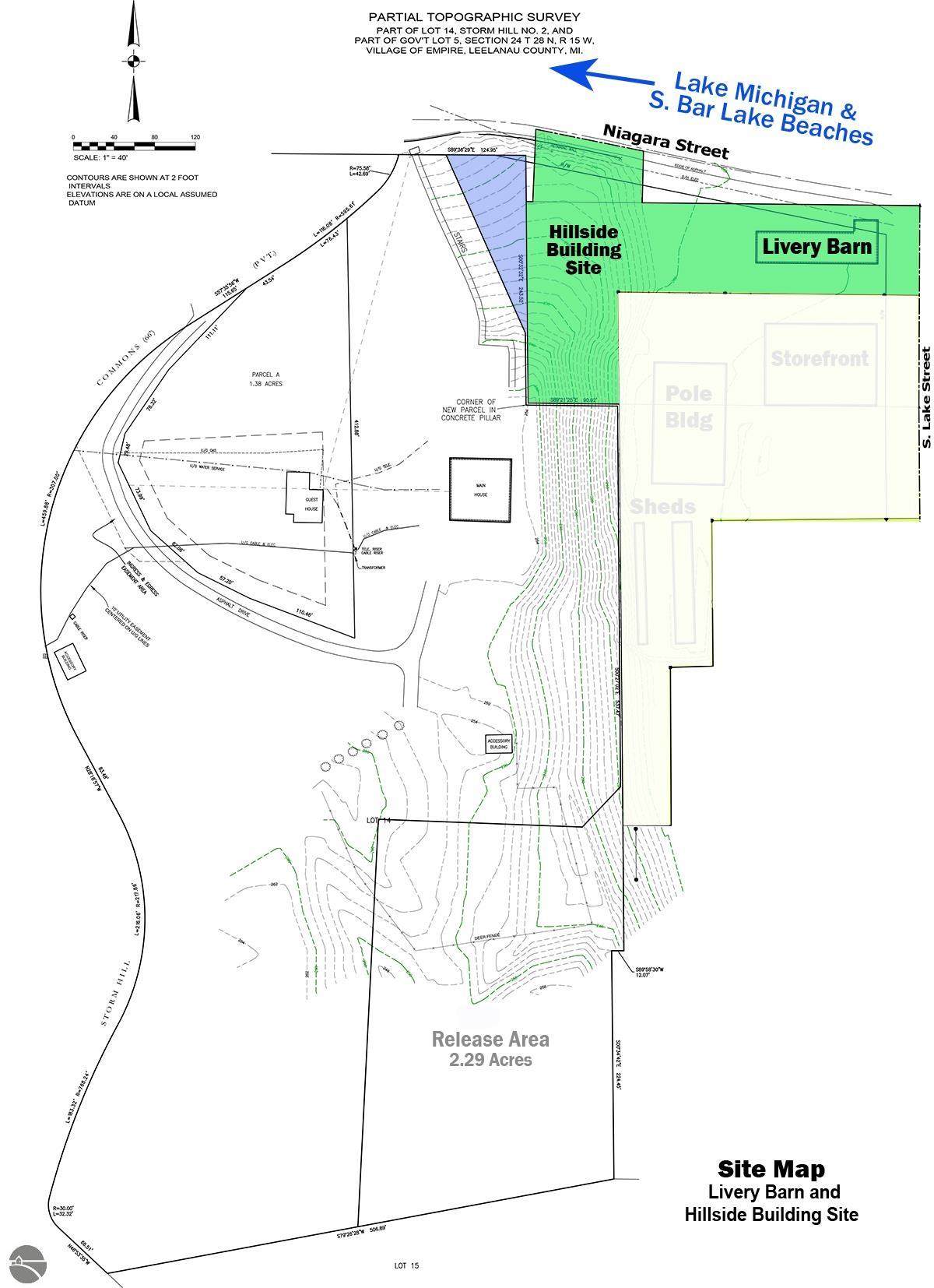
Residential Building Site located downtown in the quaint Village Of Empire. Property includes a Historic, 2 Level, 7,400+ square foot Livery Barn built in 1900. This wooded building site offers views of both Lake Michigan and South Bar Lake; is within close walking distance of Lake Michigan beach access; and has access to the following utilities: Natural Gas; Municipal water; and Spectrum high speed Internet, TV and telephone. Additional acreage is available at 11738 S. Lake Street (MLS # 1912604). View Preservation (& Creation) corridors in place, and additional Septic Release Area is available. Listing includes 2 Parcels, Click "Associated Documents" for both Tax ID #'s and Legal Descriptions. Listing data and information, including year built, measurements, Building square footage total, Zoning/Building details, Tax ID#'s, and supplemental Documents have been obtained from third party sources and /or the Seller; all data and information is deemed reliable but cannot be guaranteed for accuracy; independent verification should be made by Purchaser and Purchaser’s Agent prior to Closing

Monthly Payment Calculator



The accuracy of all information, regardless of source, is not guaranteed or warranted. All information should be independently verified. © 2026 Northern Great Lakes REALTORS© MLS. All rights reserved. Data last updated: 2026-03-07T06:51:48.54.
www.housestraversecity.com/homes/142359008
Print Image

11712 S Lake Street Empire, MI 49630

  • Price: $870,000
  • Status: Active
  • On Site: 938 Days
  • Updated: 30 min ago
  • MLS #: 1914472
0
Beds
0
Baths
0
½ Baths
1.12
Acres
Neighborhood:
N/A
County:
Leelanau
Area:
Leelanau
School District:
Glen Lake Community Schools
Property Description
Residential Building Site located downtown in the quaint Village Of Empire. Property includes a Historic, 2 Level, 7,400+ square foot Livery Barn built in 1900. This wooded building site offers views of both Lake Michigan and South Bar Lake; is within close walking distance of Lake Michigan beach access; and has access to the following utilities: Natural Gas; Municipal water; and Spectrum high speed Internet, TV and telephone. Additional acreage is available at 11738 S. Lake Street (MLS # 1912604). View Preservation (& Creation) corridors in place, and additional Septic Release Area is available. Listing includes 2 Parcels, Click "Associated Documents" for both Tax ID #'s and Legal Descriptions. Listing data and information, including year built, measurements, Building square footage total, Zoning/Building details, Tax ID#'s, and supplemental Documents have been obtained from third party sources and /or the Seller; all data and information is deemed reliable but cannot be guaranteed for accuracy; independent verification should be made by Purchaser and Purchaser’s Agent prior to Closing
Exterior Features

Exterior Features SidewalksOther Garage YN No Pool Private YN No View Water View YN Yes

Interior Features

Above Grade Finished Area Units Square Feet Below Grade Finished Area Units Square Feet

Property Features

Association Fee Frequency Annually Community Features None Deeded Waterfront No ECOFeatures No Home Warranty YN No Horse YN No Lease Amount Frequency Annually Lease Considered YN No Lease Renewal Option YN No Listing Terms ConventionalCash Lot Features LevelSlopedHardwoodsCorner Lot Manufactured Allowed No Ownership Type Private Owner Possession Negotiable Road Responsibility Public Maintained Road Road Surface Type Asphalt Sewer OtherNone Tax Assessed Value 68589 Tax Legal Description Click Documents for both Tax ID #'s and Legal Descriptions. Utilities Cable InternetCable AvailableElectricity AvailableNatural Gas AvailableWiFi Water Source PublicNone Waterfront YN No Zoning Description ResidentialOtherMetes and Bounds

Listing information © 2026 Northern Great Lakes REALTORS© MLS.
Listing provided courtesy of REO-TCRandolph-233022: 231-946-4040.



The accuracy of all information, regardless of source, is not guaranteed or warranted. All information should be independently verified. © 2026 Northern Great Lakes REALTORS© MLS. All rights reserved. Data last updated: 2026-03-07T06:51:48.54.
 
https://bt-photos.global.ssl.fastly.net/nglrmls/1280_boomver_2_1914472-2.jpg https://bt-photos.global.ssl.fastly.net/nglrmls/1280_boomver_2_1914472-2.jpg https://bt-photos.global.ssl.fastly.net/nglrmls/1280_boomver_2_1914472-2.jpg
Logo
Team Dakoske | RE/MAX Bayshore
500 S. Union
Traverse City MI, 49684