Skip To Content

311 Lester Street

Cadillac, MI 49601
  • $199,900
  • STATUS: Active Under Contract
  • ON SITE: 9 Days
  • MLS #: 1942590
Under Contract
UPDATED: 37 min ago
$199,900
  • 2
    BEDS
  • 0.14
    ACRES
  • 2
    BATHS
  • 0
    1/2 BATHS
  • 1,842
    SQFT
  • $109
    $/SQFT
Type:
Single-Family Home
Built:
1940
County:
Area:

School Ratings & Info

School District:

Description

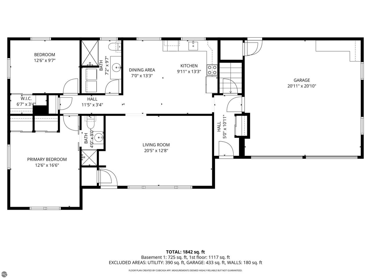
Enjoy everything Cadillac has to offer from this beautifully maintained 2-bedroom, 2-bath single-family home, perfectly positioned on a peaceful corner lot just moments from it all. Recent updates include roof, windows, gutters, updating baths and kitchen, paint and new flooring throughout. Imagine starting your mornings with a short walk to Franklin Elementary School, spending afternoons along the shores of Lake Cadillac, and enjoying evenings exploring the shopping and dining options along South Mitchell Street — all just blocks from your front door. Inside, the home blends comfort and functionality with low-maintenance living in mind, all city amenities are available, water, sewer, trash/recycling and high speed internet. The spacious eat-in kitchen features updated flooring and fresh paint throughout, creating a bright, welcoming atmosphere. Downstairs, the partially finished basement becomes your go-to gathering space — complete with a bar area and pool table, making it perfect for entertaining friends, hosting game nights, or simply unwinding. Retreat to your private primary ensuite for quiet relaxation at the end of the day, while the second bedroom and full bath provide flexible space for guests, a home office, or hobbies. The attached 2-car garage offers plenty of room for vehicles and storage. Whether you're seeking proximity to schools, downtown and the lake, or a comfortable home designed for entertaining, this property delivers the complete Cadillac lifestyle. Seller obtained an independent appraisal to support the list price.

Monthly Payment Calculator



The accuracy of all information, regardless of source, is not guaranteed or warranted. All information should be independently verified. © 2026 Northern Great Lakes REALTORS© MLS. All rights reserved. Data last updated: 2026-03-11T11:51:47.093.
www.housestraversecity.com/homes/173543380
Print Image

311 Lester Street Cadillac, MI 49601

  • Price: $199,900
  • Status: Active Under Contract
  • On Site: 9 Days
  • Updated: 37 min ago
  • MLS #: 1942590
2
Beds
2
Baths
0
½ Baths
0.14
Acres
1,842
SQFT
$109
$/SQFT
1940
Built
Neighborhood:
Home Bldg & Realty Co Add
County:
Wexford
Area:
Wexford
School District:
Cadillac Area Public Schools
Property Description
Enjoy everything Cadillac has to offer from this beautifully maintained 2-bedroom, 2-bath single-family home, perfectly positioned on a peaceful corner lot just moments from it all. Recent updates include roof, windows, gutters, updating baths and kitchen, paint and new flooring throughout. Imagine starting your mornings with a short walk to Franklin Elementary School, spending afternoons along the shores of Lake Cadillac, and enjoying evenings exploring the shopping and dining options along South Mitchell Street — all just blocks from your front door. Inside, the home blends comfort and functionality with low-maintenance living in mind, all city amenities are available, water, sewer, trash/recycling and high speed internet. The spacious eat-in kitchen features updated flooring and fresh paint throughout, creating a bright, welcoming atmosphere. Downstairs, the partially finished basement becomes your go-to gathering space — complete with a bar area and pool table, making it perfect for entertaining friends, hosting game nights, or simply unwinding. Retreat to your private primary ensuite for quiet relaxation at the end of the day, while the second bedroom and full bath provide flexible space for guests, a home office, or hobbies. The attached 2-car garage offers plenty of room for vehicles and storage. Whether you're seeking proximity to schools, downtown and the lake, or a comfortable home designed for entertaining, this property delivers the complete Cadillac lifestyle. Seller obtained an independent appraisal to support the list price.
Exterior Features

Carport YN No Construction Materials FramePress Board Entry Level 1 Exterior Features SidewalkRain Gutters Foundation Details Block Garage Dimensions 21 x 21 Garage YN Yes Patio And Porch Features Covered Pool Private YN No Roof Asphalt Spa YN No View YN No Window Features BlindsDrapesCurtain Rods

Interior Features

ABdrm 1117 Above Grade Finished Area 1117 Above Grade Finished Area Units Square Feet Accessibility Features Accessible EntranceRoll-In Shower Appliances RefrigeratorOven/RangeWasherDryer Basement FullFinished RoomsEgress WindowsInterior Entry Below Grade Finished Area 725 Below Grade Finished Area Units Square Feet Below Grade Un Fin Apx Sq Ft 1000 Cooling Central Air Cooling YN Yes Fireplace Features None Fireplace YN No Flooring LaminateConcrete Heating Forced AirNatural Gas Heating YN Yes Interior Features Entrance FoyerWalk-In Closet(s)Wet BarBreakfast NookMud RoomDrywallCeiling Fan(s)Cable TVHigh Speed Internet Laundry Features Main Level Levels One Main Level Bathrooms 2 Main Level Bedrooms 2 Num Baths Lower 0 Num Baths Upper 0 Room Bedroom2 Area 122.219999999 Room Bedroom2 Level Main Room Dining Room Area 93.1 Room Dining Room Level Main Room Family Room Area 959.95 Room Family Room Level Lower Room Kitchen Area 121.163 Room Kitchen Level Main Room Living Room Area 262.4 Room Living Room Level Main Room Master Bathroom Features Private Room Master Bedroom Area 209.16 Room Master Bedroom Level Main

Property Features

Association Fee Frequency Annually Association Fee Includes None Attached Garage YN Yes Community Features None Deeded Waterfront No ECOFeatures No Home Warranty YN No Horse YN No Laundry Length Apx 7 Laundry Width Apx 4 Lease Amount Frequency Annually Lease Considered YN No Lease Renewal Option YN No Listing Terms ConventionalCashFHAUSDA LoanVA Loan Lot Features Corner LotLandscapedSubdivided Main Floor Primary Yes New Construction YN No Number Of Full Time Employees 20 Open Parking YN Yes Other Structures None Other Taxes 0 Parking Features ConcretePrivateAttachedGarage Door OpenerPavedConcrete Floors Pets Allowed No Possession Close Of Escrow Principal Residence Yes Property Attached YN No Property Sub Type Single Family Residence Road Responsibility Public Maintained Road Road Surface Type Asphalt Security Features Smoke Detector(s) Sewer Public Sewer Special Listing Conditions Estate Tax Annual Amount 3036.97 Tax Assessed Value 69932 Tax Legal Description LOT 24BLK 234 HOME BLDG & REALTY CO ADD CITY OF CDILLAC Tax Year 2024 Water Source Public Waterfront Features None Waterfront YN No Year Built Effective 2023 Zoning Description Residential

Listing information © 2026 Northern Great Lakes REALTORS© MLS.
Listing provided courtesy of City2Shore Real Estate Northern Michigan: 231-839-0077.



The accuracy of all information, regardless of source, is not guaranteed or warranted. All information should be independently verified. © 2026 Northern Great Lakes REALTORS© MLS. All rights reserved. Data last updated: 2026-03-11T11:51:47.093.
 
https://bt-photos.global.ssl.fastly.net/nglrmls/1280_boomver_1_1942590-2.jpg https://bt-photos.global.ssl.fastly.net/nglrmls/1280_boomver_1_1942590-2.jpg https://bt-photos.global.ssl.fastly.net/nglrmls/1280_boomver_1_1942590-2.jpg
Logo
Team Dakoske | RE/MAX Bayshore
500 S. Union
Traverse City MI, 49684